Kaufpreis

85.000 €

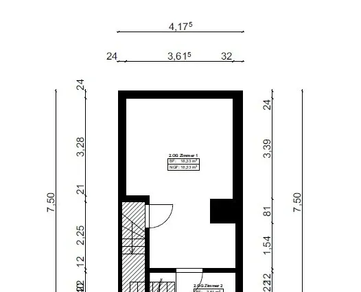
ca. 80,2 m²
Wohnfläche
4,5
Zimmer
ca. 39 m²
Grundstück

Historisches Denkmal mit Förderpotenzial im Herzen von Bad Wimpfen

Reihenmittelhaus zum Kauf

Zum Kauf Dachboden

Objekt-Nr: 947_MH_Invictus


Preis

Käuferprovision:

5000€ zzgl. MwSt.

Kaufpreis:
85.000 €

Fläche

Wohnfläche:
ca. 80,2 m²
Zimmer:
4,5
Grundstücksfläche:
ca. 39 m²

Räume / Flure

Etagen:
3
Terrassen:
1

Zustand

Bauweise:
Massiv
Unterkellert:
Nein

Weitere Informationen

verfügbar ab:
nach Absprache

Beschreibung

Ein gutes Investment fühlt sich nicht gut an – es rechnet sich gut.

Dieses denkmalgeschützte Gebäude in Bad Wimpfen der schönsten Altstadt Deutschlands, ist eine seltene Gelegenheit für alle, die das Besondere suchen und Werte mit Zukunft schaffen möchten. Eingebettet in die historische Altstadt entfaltet die Immobilie ihren ganz eigenen Charme und spricht gezielt Käufer an, die Charakter, Geschichte und Individualität zu schätzen wissen.

Auf ca. 80 m² bietet sich Ihnen ein außergewöhnliches Entwicklungspotenzial. Ob als stilvolles Eigenheim oder als attraktives Investment mit bis zu drei Wohneinheiten, hier können Sie Ihre Vision verwirklichen und ein einzigartiges Wohnkonzept realisieren. Die kleine Terrasse im geschützten Innenhof schafft dabei einen ruhigen Rückzugsort und verleiht dem Objekt zusätzlichen Wohnwert.

Der vorhandene Sanierungsbedarf eröffnet Ihnen die Möglichkeit, dieses historische Gebäude nach Ihren eigenen Vorstellungen neu zu gestalten und gleichzeitig von erheblichen finanziellen Vorteilen zu profitieren. Die Lage im Sanierungsgebiet Wimpfen am Berg ermöglicht attraktive Zuschüsse für Modernisierungs- und Instandsetzungsmaßnahmen. In Kombination mit den steuerlichen Vorteilen eines Denkmals entsteht hier ein besonders spannendes Gesamtpaket für Eigennutzer und Kapitalanleger.

Ein Objekt für Menschen mit Weitblick, die nicht einfach nur kaufen, sondern gestalten und langfristige Werte schaffen möchten.

Das Gebäude steht unter Denkmalschutz. Ein Energieausweis ist daher nicht erforderlich.

Eine seltene Gelegenheit, historische Substanz mit Zukunft zu verbinden und sich ein echtes Unikat in begehrter Lage zu sichern.

Lage

Bad Wimpfen, eine malerische Kurstadt im Landkreis Heilbronn, bietet eine einzigartige Mischung aus historischem Charme und moderner Lebensqualität. Die Stadt ist bekannt für ihre mittelalterliche Altstadt mit verwinkelten Gassen, gut erhaltenen Fachwerkhäusern und dem imposanten Blauen Turm, der als Wahrzeichen weit über die Region hinaus bekannt ist.

Die idyllische Lage am Neckar, umgeben von sanften Hügeln und Weinbergen, macht Bad Wimpfen zu einem attraktiven Wohnort für Naturliebhaber und Ruhesuchende. Gleichzeitig profitieren die Bewohner von einer ausgezeichneten Infrastruktur: Geschäfte des täglichen Bedarfs, Ärzte, Apotheken und Schulen sind bequem erreichbar. Auch kulturell hat die Stadt mit regelmäßigen Veranstaltungen, wie dem berühmten Weihnachtsmarkt und Sommerfesten, einiges zu bieten.

Ausstattung

– Historische Bausubstanz mit viel Charme
– Teilweise bereits entkernt
– Strom und Wasserleitungen teilweise erneuert
– Flexible Nutzung mit Potenzial für bis zu drei Wohneinheiten oder Eigennutzung
– Kleine Terrasse im geschützten Innenhof
– Sanierungsgebiet mit attraktiven Fördermöglichkeiten
– Steuerliche Vorteile durch Denkmalschutz möglich

Sonstiges

Liebe Suchende,
Sie möchten eine Immobilie verkaufen oder vermieten?
Dann sind Sie bei uns genau richtig.
Wir entwickeln die optimal auf Sie zugeschnittene Strategie ob:
Verkauf, Vermietung, Erbpacht, Gewerbe im Vordergrund steht.
Wir haben den richtigen Ansprechpartner für Sie.

Kommen Sie lieber gleich zu den Profis der invictus Immobilien GmbH.

Sie erreichen uns unverbindlich unter folgender Telefonnummern 07063 266 03 19 oder m.henn@invictus.gmbh oder Sie finden mich nach Rücksprache in der Hauptstraße 33 74206 Bad Wimpfen oder Schulgasse 9 74072 Heilbronn


Standort

74206 Bad Wimpfen


Galerie

Objektanfrage

*“ zeigt erforderliche Felder an

Einverständniserklärung zur Kontaktaufnahme*

Ähnliche Immobilien