Kaufpreis

325.000 €

ca. 260 m²
Wohnfläche
13
Zimmer
ca. 406 m²
Grundstück

Renditestarkes Mehrfamilienhaus mit Ausbauoptionen und ca. 6,65% Bruttorendite

Mehrfamilienhaus zum Kauf

Zum Kauf Vermietet WG-geeignet Kamin Gäste-WC Wasch/Trockenraum Dachboden

Objekt-Nr: 833_JF_Invictus


Preis

Käuferprovision:

3,57% vom Kaufpreis inkl. gesetzl. MwSt.

Kaufpreis:
325.000 €
Mieteinnahmen (Ist):
21.600 €
Nettorendite (Ist):
6,7 %

Fläche

Wohnfläche:
ca. 260 m²
Zimmer:
13
Nutzfläche:
ca. 170 m²
Grundstücksfläche:
ca. 406 m²
Dachbodenfläche:
ca. 60 m²

Räume / Flure

Etagen:
3
Schlafzimmer:
6
Badezimmer:
3
Wohneinheiten:
3
Separate WCs:
2
Balkone:
1

Zustand

Baujahr:
1990
Zustand:
gepflegt
Bauweise:
Holz
Unterkellert:
Ja

Stellplatz-Details

Carport:
Anzahl:
4
Freiplatz:
Anzahl:
4
Garage:
Anzahl:
4

Beschreibung

Dieses charmante und vielseitig nutzbare Mehrfamilienhaus liegt im Herzen der Stadt Külsheim – direkt an der historischen Stadtmauer. Das Anwesen vereint Geschichte, solide Bauweise und attraktive Renditemöglichkeiten in einer zentralen Lage mit hervorragender Infrastruktur.

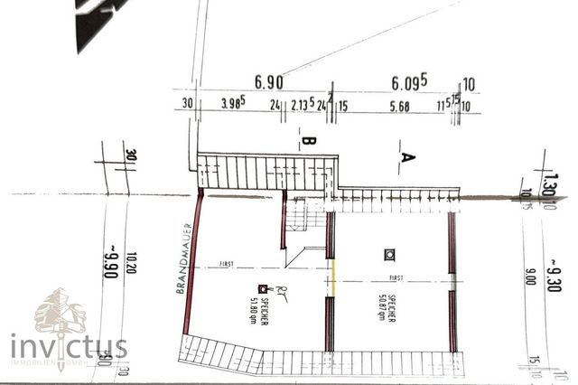
Der erste Gebäudeteil wurde ursprünglich 1844 errichtet und 1989 durch einen Anbau erweitert. Auf einem Grundstück von ca. 460 m² bietet das Haus eine Wohnfläche von rund 260 m² sowie eine zusätzliche Nutzfläche von ca. 170 m², sowie ein externes Gartengrundstück (ca. 570 m²) welches nicht im Kaufpreis enthalten ist.

Das Anwesen verfügt über insgesamt 9 Zimmer, 3 Bäder, 2 Garagen, eine Werkstatt sowie weitere Ausbaureserven für zusätzliche Wohneinheiten.

Ein einzigartiges Objekt mit historischem Flair, solider Rendite und attraktivem Entwicklungspotenzial.
Ideal für Kapitalanleger oder Investoren, die Wert auf nachhaltige Mieteinnahmen und zusätzliche Ausbaureserven legen.

Lage

Das Objekt liegt mitten im Stadtkern von Külsheim, in unmittelbarer Nähe zu Geschäften des täglichen Bedarfs, Restaurants, Schulen und Ärzten. Die ruhige, dennoch zentrale Lage macht die Immobilie sowohl für Mieter als auch für Selbstnutzer äußerst attraktiv.

Külsheim bietet durch seine historische Altstadt, gute Verkehrsanbindung und die Nähe zu Tauberbischofsheim und Wertheim einen hohen Wohn- und Freizeitwert.

Ausstattung

Aktuelle Aufteilung & Vermietung

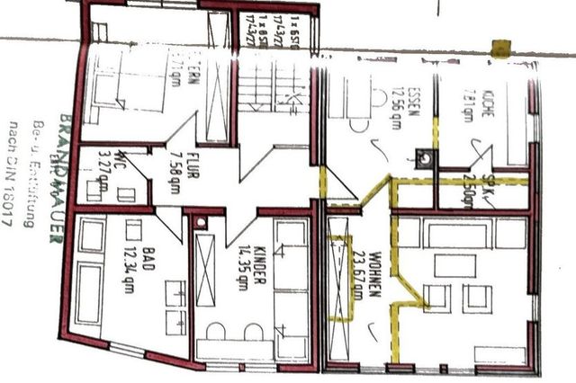
Erdgeschoss:
4-Zimmer-Wohnung, ca. 100 m²
Ordentliche Küche, großzügiges Badezimmer
Garage
Aktuell vermietet: 650 € kalt
Neu vermietbar ab 15.04.2026

1. Obergeschoss:
4-Zimmer-Wohnung, ca. 100 m²
Balkon mit Blick auf die historische Stadtmauer
Garage
Aktuell vermietet: 750 € kalt
seit Oktober 2025 neu vermietet

Dachgeschoss:
1-Zimmer-Wohnung, ca. 55 m²
Garage/Werkstatt
Aktuell vermietet: 400 € kalt
seit Dezember 2025 neu vermietet

Gesamte monatliche Kaltmiete: ca. 1.800 €
Jahresnettokaltmiete: ca. 21.600 €
Bruttomietrendite ≈ 6,65 %

Erweiterungspotenzial

Neben der bestehenden Dachgeschosswohnung lässt sich eine weitere Wohnung mit ca. 50 m² Wohnfläche sowie im Kellergeschoss ein ca. 21 m² Appartment realisieren.
Zusätzlich kann im Obergeschoss des Nebengebäudes eine Wohnung mit ca. 80 m² entstehen – ideal, um die Mieteinnahmen weiter zu steigern und den Wert des Objekts zu erhöhen.

Besonderheiten:

Historischer Gebäudeteil mit Gewölbekellern
Zwei Gewölbekeller, mehrere Kellerräume
Scheune, die aktuell als Garage dient, mit vielseitigen Nutzungsmöglichkeiten
Zwei Garagen und zusätzliche Stellflächen
Großzügiger Carport
Externes Gartengrundstück (ca. 570 m²) nicht im Kaufpreis enthalten
Bodenbeläge: Fliesen, Laminat, Dielen
Solide Mieterstruktur und laufende Instandhaltung
Zentrale Lage direkt an der historischen Stadtmauer


Standort

97900 Külsheim


Galerie


Energieausweis

Energieausweistyp
Bedarf
Energieausweis gültig bis
15. April 2031
Endenergiebedarf
137,7 kWh/(m²*a)
Energieeffizienzklasse
E
Energieausweis Baujahr
1989
Wesentlicher Energieträger
Elektro
Befeuerungsart
Fernwärme
Heizungsart
Zentralheizung
  • A+
  • A
  • B
  • C
  • D
  • E
  • F
  • G
  • H
  • 0
  • 25
  • 50
  • 75
  • 100
  • 125
  • 150
  • 175
  • 200
  • 225
  • >250
 
Endenergiebedarf: 137,7 kWh/(m²*a)

Objektanfrage

*“ zeigt erforderliche Felder an

Einverständniserklärung zur Kontaktaufnahme*

Ähnliche Immobilien